- 3 Bed
- 1.5 Bath
- 1616 sqft
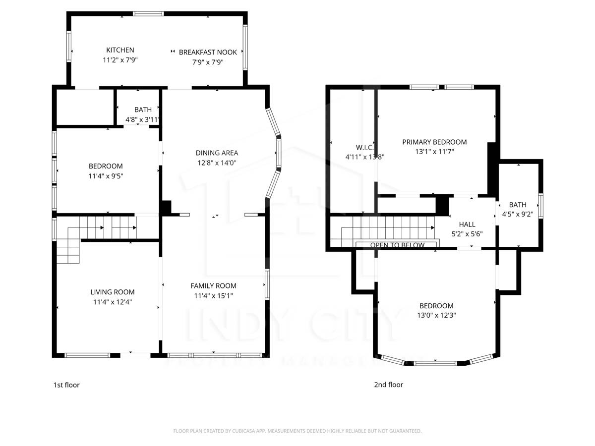
Leasing Incentive: $500 rent credit applied during the first 6 months of the lease. Restrictions apply. Welcome home to 960 Eastern Avenue – a charming and thoughtfully updated 3 bedroom, 2 bathroom home located on the near southeast side of Indianapolis near Fountain Square and Garfield Park. This adorable home features a first-floor primary bedroom with an en suite bathroom, creating a comfortable and convenient main-level living option. The first floor also includes a beautifully updated modern kitchen with a breakfast nook, a dedicated dining room, and a welcoming living space, all accented by gorgeous refinished hardwood floors. Upstairs, you'll find two additional bedrooms, a full bathroom, and an oversized walk-in closet in one of the bedrooms. With its functional layout and inviting updates, this home offers both character and everyday comfort. Features: • 3 bedrooms / 2 bathrooms • First-floor primary suite with en suite bath • Updated kitchen with breakfast nook • Dedicated dining and living spaces • Refinished hardwood floors on main level; laminate upstairs • Two upstairs bedrooms with full bathroom and large walk-in closet • Laundry room off the kitchen • Fridge and stove included after lease signing; washer and dryer hookups in home • 2-year lease What We Look For in an Application: • Net monthly income must be at least 3x the rent • Stable rental history preferred • No evictions within the past 5 years • Credit and criminal background reviewed on a case-by-case basis Applications are reviewed and approved on a first-come, first-qualified basis. Schedule your convenient self-guided tour today! All tours are self-guided through Rently. To tour, please register at Rently.com, complete identity verification, and follow the instructions to access the property. All leasing communication will come from our leasing manager after your application is received. Contact: Vienna – leasingindycitypm@gmail.com Phone (call only): 317-505-1656 Visit us online at indycityrents.com Property address: 960 Eastern Avenue, Indianapolis, IN Rental Requirements: • Tenant is responsible for lawn maintenance and all utilities • Pet friendly – breed restrictions apply - $250 pet fee per pet - $50/month pet rent per pet • Maximum of 2 pets per unit • Security deposit may vary • Apply online at indycityrents.com To protect applicants from rental scams, always verify listings and submit applications only at indycityrents.com.
$1,500.00 security deposit